APPARTEMENT T2 A VENDRE
ST JEAN DE LOSNE
51.27 m2 - 45 000 €
NOUVEAUTE NEYRAT IMMOBILIER !
Appartement T2 de 51,27 m² situé au calme, à deux pas de la Saône. Installé au 1er étage d'une petite copropriété, avec le charme de l'ancien comprenant un salon avec insert, une chambre et une cuisine, salle de bains, wc séparés, grenier, cave, chauffage gaz, prévoir travaux (faibles charges 640 €, nombre de lots copropriété 14, pas de procédure en cours, appartement 1940/10000èmes des parties communes, grenier 758/10000èmes, buanderie 217/1000ème des parties communes, cave 138/1000èmes des parties communes ). Découvrez l'appartement avant/ après grâce au projet de rénovation ! Visite avec Nathalie BAUDOT 0646138538.
Logement à consommation énergétique excessive : classe G.
Les informations sur les risques auxquels ce bien est exposé sont disponibles sur le site Géorisques : www.georisques.gouv.fr
Réf : 18025
Caractéristiques
Aménagements
- caves : 1
- chauffage : individuel gaz et bois
Copropriété
- soumis au statut de la copropriété : oui
- copropriété : 14 lots
- montant moyen annuel des charges courantes : 1 004 €/an soit 83,67 €/mois
- procédure en cours : non
Informations financières
- honoraires à charge : du vendeur
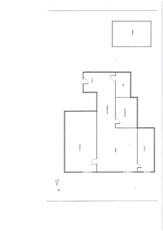
Quelques surfaces plus en détail
Surfaces données à titre indicatif – Non contractuelles :
- Cuisine (niveau 1) : 11.8 m2
- Salon (niveau 1) : 19 m2
- Chambre 1 (niveau 1) : 14 m2
- Salle de bains (niveau 1) : 3.2 m2
- Wc (niveau 1) : 1.6 m2
- Couloir (niveau 1) : 1.7 m2
- Grenier (niveau 2) : utile : 53 m2
- Buanderie (niveau 0) : utile : 14.7 m2
Voir quelques surfaces plus en détailImprimer la ficheVoir nos prestations et tarifs
Classe énergie et classe climat
dont émissions de Gaz à effet de serre
En savoir plus
Classe énergie et classe climat
Connexion internet
| | Cuivre DSL de 30 à 100 Mbit/s
Fibre optique plus de 1 Gbit/s
|
Données en provenance de l'Arcep
Montant estimé des dépenses annuelles d'énergie
Les dépenses d'énergie sont estimées entre 1 900 € et 2 650 € par an selon l'année de référence 2023.
Estimation de dépenses en fonction du logement et pour une utilisation standard sur 5 usages (chauffage, eau chaude sanitaire, climatisation, éclairage, auxiliaires).
L'agence
NEYRAT IMMOBILIER
Saint Jean de Losne Agence Odile PERRIN
1 rue Monge
21170 ST JEAN DE LOSNE
Tél : 03 80 77 92 25
Votre conseiller pour visiter ce bien
Nathalie BAUDOT
Agent commercial
Tél : 03 80 77 92 25
Tél mobile : 06.46.13.85.38
Numéro RCS : 815 218 755
Contactez-nous via ce formulaire ou appelez-nous pour visiter ce bien
Ecoles, transports, sorties et commerces sur ST JEAN DE LOSNE (21170)
St Jean De Losne est une ville de 1 020 habitants. Côté immobilier, les habitations sont réparties en 29 % de maisons et 71 % d'appartements. On y trouve des commerces dont des supermarchés ou supérettes. On trouve des établissements scolaires à St Jean De Losne.

















Mes favoris



Contacts