Ensemble immobilier de rapport A VENDRE
PONTAILLER SUR SAONE
263 m2 - 130 000 €
Description
Situé au cœur d'Auxonne, nous vous proposons en exclusivité cet ensemble immobilier sur 5 niveaux .
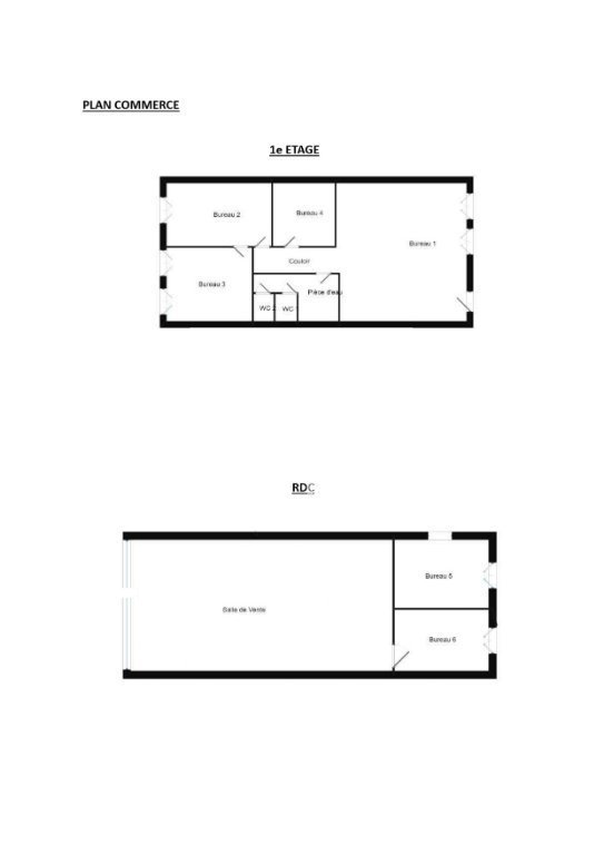
-Le rez-de-chaussée comprend un local commercial avec 2 bureaux .
Le premier étage un couloir dessert 3 bureaux, une salle de réunion, une salle d'eau avec 2 WC séparés.
Le RDC et le 1er étage sont actuellement loué 800 € HT / mois .
Le deuxième étages à rénover comprend un appartement type 3 composé d'une entrée, vaste séjour lumineux, cuisine, salle d'eau avec WC, 1 chambre avec rangements, une pièce borgne. Pour habiter ou pour investir.
Une cave et un grenier aménageable complete le bien.
L'environnement est pratique : proximités immédiates de toutes les commodités, facilitant la vie quotidienne et l'attractivité locative. L'immeuble est soumis au statut de la copropriété.
Pour découvrir ce bien et envisager ses nombreuses possibilités d'aménagement ou d'exploitation, contactez Caroline PAILLOT Neyrat Immobilier Auxonne au O6.11.76.O4.58 pour plus de renseignement ou pour organiser une visite.
Les informations sur les risques auxquels ce bien est exposé sont disponibles sur le site Géorisques : www.georisques.gouv.fr
Réf : 17919
Caractéristiques
Copropriété
- soumis au statut de la copropriété : oui
- copropriété : 15 lots
- montant moyen annuel des charges courantes : 0 €/an soit 0 €/mois
- procédure en cours : non
Informations financières
- honoraires à charge : du vendeur
Quelques surfaces plus en détail
Surfaces données à titre indicatif – Non contractuelles :
- Local commercial (niveau 0) : 39 m2
- Bureau (niveau 1) : 33.5 m2
- Bureau (niveau 1) : 12.3 m2
- Salle de douche + wc (niveau 1) : 8.4 m2
- Bureau (niveau 1) : 8.3 m2
- Cave (niveau -1) : utile : 35 m2
- Salle de reunion (niveau 2) : 26 m2
- Salle de douche + wc (niveau 2) : 3 m2
- Cuisine (niveau 2) : 4 m2
- Sejour (niveau 2) : 32 m2
- Bureau (niveau 2) : 7 m2
Voir quelques surfaces plus en détailImprimer la ficheVoir nos prestations et tarifs
Classe énergie et classe climat
DPE VIERGE
DPE ANCIENNE VERSION
L'agence
NEYRAT IMMOBILIER
Auxonne
68 Rue Antoine Masson
21130 AUXONNE
Tél : 03.45.83.90.02
Votre conseiller pour visiter ce bien
Caroline PAILLOT
Agent commercial
Tél : 03.45.83.90.02
Tél mobile : 06 11 76 04 58
Numéro RCS : 849 721 790
Contactez-nous via ce formulaire ou appelez-nous pour visiter ce bien
Ecoles, transports, sorties et commerces sur PONTAILLER SUR SAONE (21270)
Pontailler Sur Saone est une ville de 1 291 habitants. Côté immobilier, les habitations sont réparties en 77 % de maisons et 23 % d'appartements. On y trouve des commerces dont des supermarchés ou supérettes. On trouve des établissements scolaires à Pontailler Sur Saone.





Mes favoris



Contacts