MAISON
ST MARTIN EN BRESSE
89 m2 - VENDU
Description
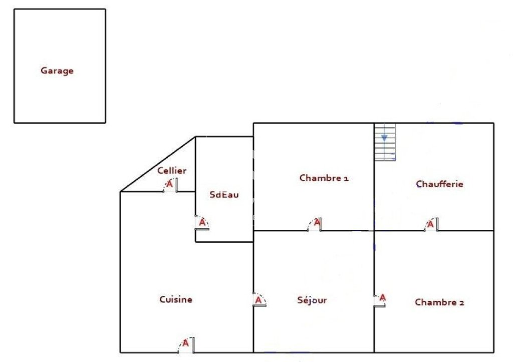
Maison de village idéalement située, en plein centre bourg, avec proximité immédiate des écoles, commerces et commodités! Mitoyenne d'un côté et de plain-pied, pour une surface d'environ 89m², elle se compose d'une cuisine aménagée et semi équipée , d'un dégagement, d'un salon/séjour, de 2 grandes chambres de 20m², d'une salle d'eau avec wc et d'une chaufferie avec accès aux combles qui pourraient être aménagés, le tout sur un terrain de 404m² clos, avec dépendance, cour, portail, espace engazonné.
Huisseries double vitrage PVC, chauffage central fuel avec production d'eau chaude, tout à l'égout.
Pour une visite, Sophie RAGEOT 06.41.10.18.77
Logement à consommation énergétique excessive : classe F.
Les informations sur les risques auxquels ce bien est exposé sont disponibles sur le site Géorisques : www.georisques.gouv.fr
Réf : 17352
Caractéristiques
Aménagements
- Surface des dépendances : 16.55 m2 env.
- caves : 1
- construit en : 1900
- chambres : 2 dont 2 au rez-de-chaussée
- cuisine : equipee et amenagee
- chauffage : central fuel
Informations financières
- soumis au statut de la copropriété : non
Quelques surfaces plus en détail
Surfaces données à titre indicatif – Non contractuelles :
- Cuisine (niveau 0) : 22.2 m2
- Sejour (niveau 0) : 19.8 m2
- Chambre 1 (niveau 0) : 19.5 m2
- Chambre 2 (niveau 0) : 20.7 m2
- Salle de douche + wc (niveau 0) : 5 m2
- Entree arriere (niveau 0) : 1.9 m2
Voir quelques surfaces plus en détailVoir nos prestations et tarifs
Classe énergie et classe climat
dont émissions de Gaz à effet de serre
En savoir plus
Classe énergie et classe climat
Connexion internet
| | Cuivre DSL de 30 à 100 Mbit/s
Fibre optique plus de 1 Gbit/s
|
Données en provenance de l'Arcep
Montant estimé des dépenses annuelles d'énergie
Les dépenses d'énergie sont estimées entre 1 950 € et 2 690 € par an selon l'année de référence 2021.
Estimation de dépenses en fonction du logement et pour une utilisation standard sur 5 usages (chauffage, eau chaude sanitaire, climatisation, éclairage, auxiliaires).
L'agence
NEYRAT IMMOBILIER
Saint Martin En Bresse
1bis rue du Bourg
71620 ST MARTIN EN BRESSE
Tél : 03.85.41.60.50
Votre conseiller pour visiter ce bien
Sophie RAGEOT
Agent commercial
Tél : 03.85.41.60.50
Tél mobile : 06 41 10 18 77
Numéro RCS : 524 146 818
Contactez-nous via ce formulaire ou appelez-nous pour visiter ce bien
Ecoles, transports, sorties et commerces sur ST MARTIN EN BRESSE (71620)
St Martin En Bresse est une ville de 1 913 habitants. Côté immobilier, les habitations sont réparties en 92 % de maisons et 8 % d'appartements. On y trouve des commerces dont des supermarchés ou supérettes. On trouve des établissements scolaires à St Martin En Bresse.
















Mes favoris



Contacts