APPARTEMENT T6
CHALON SUR SAONE
180 m2 - 229 200 €
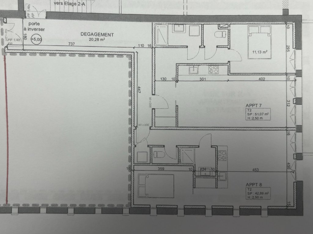
PLATEAU A AMENAGER
A 2 minutes du quartier de la Citadelle, au 1er étage, plateau à aménager de 180 m2.
Toutes les attentes vont être présentes dans l'appartement (électricité, eau et évacuations).
La façade de l'immeuble ainsi que la cage d'escalier vont être intégralement refaits à neuf.
Toutes les fenêtres seront en double vitrage PVC.
Un emplacement de parking peut être vendu en plus du prix.
Idéal pour un premier achat ou pour de l'investissement locatif.
Possibilité de faire plusieurs appartements sur le plateau.
Les informations sur les risques auxquels ce bien est exposé sont disponibles sur le site Géorisques : www.georisques.gouv.fr
Réf : 14982
Caractéristiques
Aménagements
- chauffage : individuel electrique
Copropriété
- soumis au statut de la copropriété : oui
- copropriété : 45 lots
- montant moyen annuel des charges courantes : 0 €/an soit 0 €/mois
- procédure en cours : non
Informations financières
- honoraires à charge : du vendeur
Voir nos prestations et tarifs
Classe énergie et classe climat
DPE VIERGE
DPE ANCIENNE VERSION
L'agence
NEYRAT IMMOBILIER
Chalon Sur Saône
1, rue de la Grange Frangy
71100 CHALON SUR SAONE
Tél : 03.85.48.87.53
Contactez-nous via ce formulaire ou appelez-nous pour visiter ce bien
Ecoles, transports, sorties et commerces sur CHALON SUR SAONE (71100)
Chalon Sur Saone est une ville de 45 031 habitants. Côté immobilier, les habitations sont réparties en 12 % de maisons et 88 % d'appartements. On y trouve des commerces dont des supermarchés ou supérettes. On trouve des établissements scolaires et des crèches à Chalon Sur Saone.




Mes favoris



Contacts