APPARTEMENT T6
CHALON SUR SAONE
145 m2 - 390 000 €
Hyper centre - Appartement 6 pièces - 145m²
Coup de cœur !!! Idéalement situé, sur les quais de Saône, en hyper centre de Chalon. Au sein d'un immeuble de standing. Beaucoup de cachet pour cet appartement lumineux, de plain pied, situé au deuxième étage. Entièrement rénové et décoré par des professionnels. De belles prestations avec ses pierres apparentes et ses matériaux de qualité. L'ancien et le contemporain se marient à merveille. Entrée avec placards intégrés, espace bureau, magnifique pièce de vie de plus de 53m² avec cuisine ouverte aménagée et équipée, vue dégagée sur la Saône, trois chambres dont une suite parentale avec salle d'eau et dressing aménagé, une quatrième chambre de 12.4m², en enfilade, pouvant servir de bureau ou dressing, une grande salle de bains avec deux vasques, wc, espace buanderie. Chauffage individuel gaz, double vitrage bois, électricité refaite ...
Les informations sur les risques auxquels ce bien est exposé sont disponibles sur le site Géorisques : www.georisques.gouv.fr
Réf : 12886
Caractéristiques
Aménagements
- cuisine : equipee et amenagee
- chauffage : individuel gaz
Copropriété
- soumis au statut de la copropriété : oui
- copropriété : 22 lots
- montant moyen annuel des charges courantes : 681,37 €/an soit 56,78 €/mois
- procédure en cours : non
Informations financières
- honoraires à charge : du vendeur
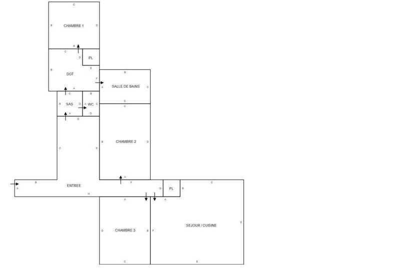
Quelques surfaces plus en détail
Surfaces données à titre indicatif – Non contractuelles :
- Entree (niveau 2) : 23.7 m2
- Hall/bureau (niveau 2) : 2.4 m2
- Wc (niveau 2) : 1.4 m2
- Bureau (niveau 2) : 12.4 m2
- Chambre 1 (niveau 2) : 16.4 m2
- Salle de bains (niveau 2) : 6.2 m2
- Chambre 2 (niveau 2) : 9.3 m2
- Séjour avec cuisine ouverte (niveau 2) : 53.2 m2
- Chambre 3 (niveau 2) : 20 m2
Voir quelques surfaces plus en détailVoir nos prestations et tarifs
Classe énergie et classe climat
DPE VIERGE
DPE ANCIENNE VERSION
L'agence
NEYRAT IMMOBILIER
Chalon Sur Saône
1, rue de la Grange Frangy
71100 CHALON SUR SAONE
Tél : 03.85.48.87.53
Votre conseiller pour visiter ce bien
Antoine GUIGUE
Tél : 03.85.48.87.53
Tél mobile : 06 81 12 97 41
Contactez-nous via ce formulaire ou appelez-nous pour visiter ce bien
Ecoles, transports, sorties et commerces sur CHALON SUR SAONE (71100)
Chalon Sur Saone est une ville de 45 031 habitants. Côté immobilier, les habitations sont réparties en 12 % de maisons et 88 % d'appartements. On y trouve des commerces dont des supermarchés ou supérettes. On trouve des établissements scolaires et des crèches à Chalon Sur Saone.




Mes favoris



Contacts