APPARTEMENT T4 NEUF
CHALON SUR SAONE
100 m2 - Prix : nous consulter
Aux portes de Chalon-sur-Saône
Aux portes de Chalon-sur-Saône, sur la commune de Saint Marcel; laissez-vous séduire par ce projet de réhabilitation de l'ancien Prieuré.
En plein bourg de Saint-Marcel, proche des commerces et commodités, vous bénéficierez d'un cadre privilégié. Cette bâtisse du 18ème siècle enclavée dans un magnifique parc classé de plus d'un hectare vous permettra de vous sentir à la campagne en plein cœur de ville !
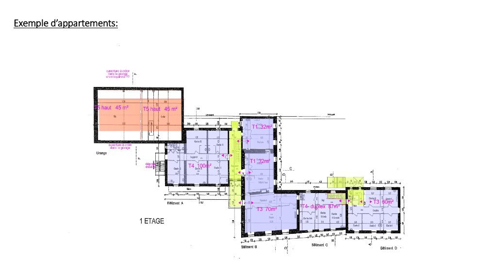
D'une architecture cossue, cet ensemble immobilier se compose de 4 bâtiments principaux et deux bâtiments annexes composés d'appartements de type 1 au type 5 dont certains en duplex et rez-de-jardin.
Aujourd'hui nous vous proposons un appartement de type 4 en rez-de-jardin de près de 100m², l'agencement intérieur sera à moduler à votre convenance. Chauffage par pompe à chaleur, menuiseries double vitrage, pour plus de renseignements et visites contacter notre agence!
Les informations sur les risques auxquels ce bien est exposé sont disponibles sur le site Géorisques : www.georisques.gouv.fr
Réf : 14485
Caractéristiques
Aménagements
- surface du jardin : 125 m2 env.
Voir nos prestations et tarifs
L'agence
NEYRAT IMMOBILIER
Chalon Sur Saône
1, rue de la Grange Frangy
71100 CHALON SUR SAONE
Tél : 03.85.48.87.53
Votre conseiller pour avoir plus d'informations
Pierre DELIANCE
Agent commercial
Tél : 03.85.48.87.53
Tél mobile : 06.22.94.09.24
Numéro RCS : 822 818 753
Contactez-nous via ce formulaire ou appelez-nous pour visiter ce bien
Ecoles, transports, sorties et commerces sur CHALON SUR SAONE (71100)
Chalon Sur Saone est une ville de 45 031 habitants. Côté immobilier, les habitations sont réparties en 12 % de maisons et 88 % d'appartements. On y trouve des commerces dont des supermarchés ou supérettes. On trouve des établissements scolaires et des crèches à Chalon Sur Saone.
En savoir plus sur Chalon Sur Saone
Mes favoris



Contacts