APPARTEMENT T3
VERDUN CIEL
59.67 m2 - 89 000 €
T3 - 59.67m² Verdun S/Le Doubs
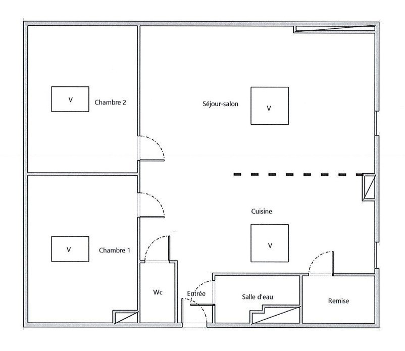
T3 de 59.67m², à Verdun S/Le Doubs, bourgade animée avec ses commerces, commodités, collège et marché, situé au 1er étage. L'accès se fait par un escalier métallique situé en pignon, il se compose d'une cuisine équipée ouverte sur salon/séjour, de deux chambres, remise, salle d'eau et wc. Il est actuellement loué 580€ CC, un bail a été signé en date du 05/07/2022. L'appartement a été entièrement rénové en 2021. Huisserie PVC double vitrage, volets roulants électrique, tout à l'égout. Aucun travaux à prévoir !
Les informations sur les risques auxquels ce bien est exposé sont disponibles sur le site Géorisques : www.georisques.gouv.fr
Réf : 14790
Caractéristiques
Aménagements
- cuisine : equipee et amenagee
- chauffage : individuel electrique
Informations financières
- honoraires à charge : du vendeur
- soumis au statut de la copropriété : non
Quelques surfaces plus en détail
Surfaces données à titre indicatif – Non contractuelles :
- Entree (niveau 1) : 1.3 m2
- Cuisine equipee (niveau 1) : 13.2 m2
- Salon sejour (niveau 1) : 23.1 m2
- Chambre 1 (niveau 1) : 8.3 m2
- Chambre 2 (niveau 1) : 9.2 m2
- Salle de douche (niveau 1) : 2.3 m2
- Wc (niveau 1) : 1.2 m2
- Rangement (niveau 1) : 1.1 m2
Voir quelques surfaces plus en détailVoir nos prestations et tarifs
Classe énergie et classe climat
dont émissions de Gaz à effet de serre
En savoir plus
Classe énergie et classe climat
Montant estimé des dépenses annuelles d'énergie
Les dépenses d'énergie sont estimées entre 900 € et 1 260 € par an selon l'année de référence 2021.
Estimation de dépenses en fonction du logement et pour une utilisation standard sur 5 usages (chauffage, eau chaude sanitaire, climatisation, éclairage, auxiliaires).
L'agence
NEYRAT IMMOBILIER
Saint Martin En Bresse
1bis rue du Bourg
71620 ST MARTIN EN BRESSE
Tél : 03.85.41.60.50
Votre conseiller pour visiter ce bien
Sophie RAGEOT
Agent commercial
Tél : 03.85.41.60.50
Tél mobile : 06 41 10 18 77
Numéro RCS : 524 146 818
Contactez-nous via ce formulaire ou appelez-nous pour visiter ce bien
Ecoles, transports, sorties et commerces sur VERDUN CIEL (71350)
Verdun Ciel est une ville de 960 habitants. Côté immobilier, les habitations sont réparties en 61 % de maisons et 39 % d'appartements. On y trouve des commerces dont des supermarchés ou supérettes. On trouve des établissements scolaires à Verdun Ciel.




Mes favoris



Contacts