APPARTEMENT TYPE 3
CHALON SUR SAONE
55.45 m2 - VENDU
Appartement type 3 Chalon sur Saône 55.45m²
Exclusivité Neyrat. Quartier Saint Cosme. Proche des commerces et de la gare. Au sein d'une petite copropriété. Appartement type 3 situé au rez-de-chaussée, offrant un séjour, une cuisine meublée, deux chambres, une salle d'eau, un wc. En annexe, deux caves et deux greniers. Chauffage individuel électrique, double vitrage pvc, volets roulants électriques ...
Les informations sur les risques auxquels ce bien est exposé sont disponibles sur le site Géorisques : www.georisques.gouv.fr
Réf : 17402
Caractéristiques
Aménagements
- cuisine : equipee et amenagee
- chauffage : individuel electrique
Copropriété
- soumis au statut de la copropriété : oui
- copropriété : 10 lots
- montant moyen annuel des charges courantes : 249,08 €/an soit 20,76 €/mois
- procédure en cours : non
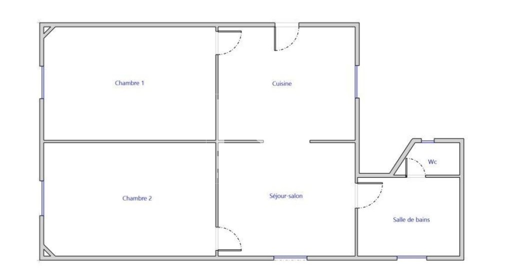
Quelques surfaces plus en détail
Surfaces données à titre indicatif – Non contractuelles :
- Cuisine : 10.5 m2
- Sejour : 12.8 m2
- Chambre 1 : 12 m2
- Chambre 2 : 13.1 m2
- Salle de bains : 6 m2
- Wc : 1.1 m2
- Grenier : 3.8 m2 (utile : 8.3 m2)
- Grenier : 2.9 m2 (utile : 7.5 m2)
Voir quelques surfaces plus en détailVoir nos prestations et tarifs
Classe énergie et classe climat
dont émissions de Gaz à effet de serre
En savoir plus
Classe énergie et classe climat
Montant estimé des dépenses annuelles d'énergie
Les dépenses d'énergie sont estimées entre 760 € et 1 070 € par an selon l'année de référence 2021.
Estimation de dépenses en fonction du logement et pour une utilisation standard sur 5 usages (chauffage, eau chaude sanitaire, climatisation, éclairage, auxiliaires).
L'agence
NEYRAT IMMOBILIER
Chalon Sur Saône
1, rue de la Grange Frangy
71100 CHALON SUR SAONE
Tél : 03.85.48.87.53
Votre conseiller pour visiter ce bien
Antoine GUIGUE
Tél : 03.85.48.87.53
Tél mobile : 06 81 12 97 41
Contactez-nous via ce formulaire ou appelez-nous pour visiter ce bien
Ecoles, transports, sorties et commerces sur CHALON SUR SAONE (71100)
Chalon Sur Saone est une ville de 45 031 habitants. Côté immobilier, les habitations sont réparties en 12 % de maisons et 88 % d'appartements. On y trouve des commerces dont des supermarchés ou supérettes. On trouve des établissements scolaires et des crèches à Chalon Sur Saone.




Mes favoris



Contacts