APPARTEMENT T2 A VENDRE
ST JEAN DE LOSNE
58.79 m2 - 70 000 €
NOUVEAUTE NEYRAT IMMOBILIER
Bel appartement T2 rénové de 58,88 m² loi Carrez, situé à LOSNE, au 2ème étage d'un ensemble en copropriété, L'entrée dessert un séjour lumineux de 32 m² avec cuisine ouverte, pièce de vie traversante qui invite à la détente et aux repas conviviaux. La chambre de 20 m² propose un espace nuit confortable. Un couloir distribue la salle de bains et des WC séparés pour plus de confort au quotidien.
Le bien bénéficie d'un accès pratique par une cour commune entre deux bâtiments, un emplacement de parking privatif et une cave.
Chauffage gaz à condensation (5 ans)charges copropriété 249 € environ par trimestre, taxe foncière 394 €, pas de procédure en cours.
Idéal pour un premier achat ou investissement locatif.
Prix : 70 000 € (honoraires TTC 7 000 € à la charge du vendeur). Mandat simple n°16344. Pour découvrir ce T2, sa cave et son emplacement de parking, contactez Natalie BAUDOT afin d'organiser une visite au 0646.138.538.
Les informations sur les risques auxquels ce bien est exposé sont disponibles sur le site Géorisques : www.georisques.gouv.fr
Réf : 18044
Caractéristiques
Aménagements
- cuisine : cuisine ouverte
- chauffage : individuel gaz
Copropriété
- soumis au statut de la copropriété : oui
- copropriété : 10 lots
- montant moyen annuel des charges courantes : 996 €/an soit 83 €/mois
- procédure en cours : non
Informations financières
- honoraires à charge : du vendeur
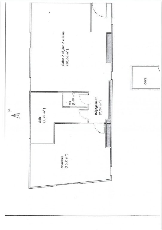
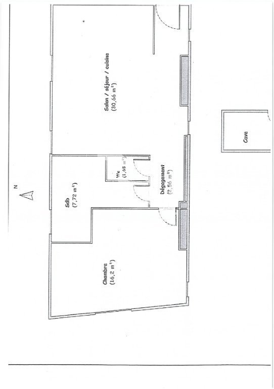
Quelques surfaces plus en détail
Surfaces données à titre indicatif – Non contractuelles :
- Cuisine ouverte sur séjour : 30.7 m2
- Chambre 1 : 16.2 m2
- Salle de bains : 7.7 m2
- Wc : 1.7 m2
- Couloir : 2.6 m2
Voir le planVoir quelques surfaces plus en détailImprimer la ficheVoir nos prestations et tarifs
Classe énergie et classe climat
dont émissions de Gaz à effet de serre
En savoir plus
Classe énergie et classe climat
Montant estimé des dépenses annuelles d'énergie
Les dépenses d'énergie sont estimées entre 1 060 € et 1 490 € par an selon l'année de référence 2023.
Estimation de dépenses en fonction du logement et pour une utilisation standard sur 5 usages (chauffage, eau chaude sanitaire, climatisation, éclairage, auxiliaires).
L'agence
NEYRAT IMMOBILIER
Saint Jean de Losne Agence Odile PERRIN
1 rue Monge
21170 ST JEAN DE LOSNE
Tél : 03 80 77 92 25
Votre conseiller pour visiter ce bien
Nathalie BAUDOT
Agent commercial
Tél : 03 80 77 92 25
Tél mobile : 06.46.13.85.38
Numéro RCS : 815 218 755
Contactez-nous via ce formulaire ou appelez-nous pour visiter ce bien
Ecoles, transports, sorties et commerces sur ST JEAN DE LOSNE (21170)
St Jean De Losne est une ville de 1 020 habitants. Côté immobilier, les habitations sont réparties en 29 % de maisons et 71 % d'appartements. On y trouve des commerces dont des supermarchés ou supérettes. On trouve des établissements scolaires à St Jean De Losne.





Mes favoris



Contacts