APPARTEMENT T2
GIVRY
47.5 m2 - 99 750 €
GIVRY CENTRE
Dans une petite copropriété, en cours de rénovation, nous proposons à la vente un appartement de type 2,
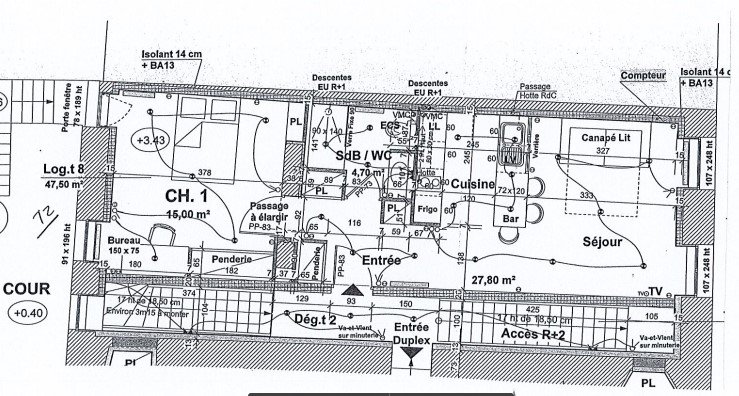
Composé d'une entrée, cuisine ouverte sur pièce principale, salle de douche, wc, chambre avec placard.
Surface habitable totale d'env 47,50 m2.
Le bien sera livré entièrement rénové avec chauffage électrique, vous aurez la possibilité de choisir la couleur des peintures, faïences, sols selon un cahier des charges existant mais aussi le personnaliser totalement au besoin.
PHOTO NON CONTRACTUELLE - PROJET POSSIBLE D AMENAGEMENT.
NEYRAT IMMOBILIER GIVRY- Karine BERT - Agent Commercial Indépendant - Tél : 06.07.76.95.79
Les informations sur les risques auxquels ce bien est exposé sont disponibles sur le site Géorisques : www.georisques.gouv.fr
Réf : 13218
Caractéristiques
Aménagements
- chauffage : individuel electrique
Copropriété
- soumis au statut de la copropriété : oui
- copropriété : 5 lots
- montant moyen annuel des charges courantes : 600 €/an soit 50 €/mois
- procédure en cours : non
Informations financières
- honoraires à charge : du vendeur
Voir nos prestations et tarifs
Connexion internet
| | Cuivre DSL de 8 à 30 Mbit/s
Fibre optique plus de 1 Gbit/s
|
Données en provenance de l'Arcep
L'agence
NEYRAT IMMOBILIER
Givry
43 Rue de la République
71640 GIVRY
Tél : 06.07.76.95.79
Votre conseiller pour visiter ce bien
Karine BERT
Agent commercial
Tél : 06.07.76.95.79
Tél mobile : 06.07.76.95.79
Numéro RCS : 535 001 812 R.S.A.C. CHALON S/S
Contactez-nous via ce formulaire ou appelez-nous pour visiter ce bien
Ecoles, transports, sorties et commerces sur GIVRY (71640)
Givry est une ville de 3 649 habitants. Côté immobilier, les habitations sont réparties en 81 % de maisons et 19 % d'appartements. On y trouve des commerces dont des supermarchés ou supérettes. On trouve des établissements scolaires à Givry.




Mes favoris



Contacts