APPARTEMENT T8
CHALON SUR SAONE
216 m2 - 272 842 €
PLATEAU A AMENAGER
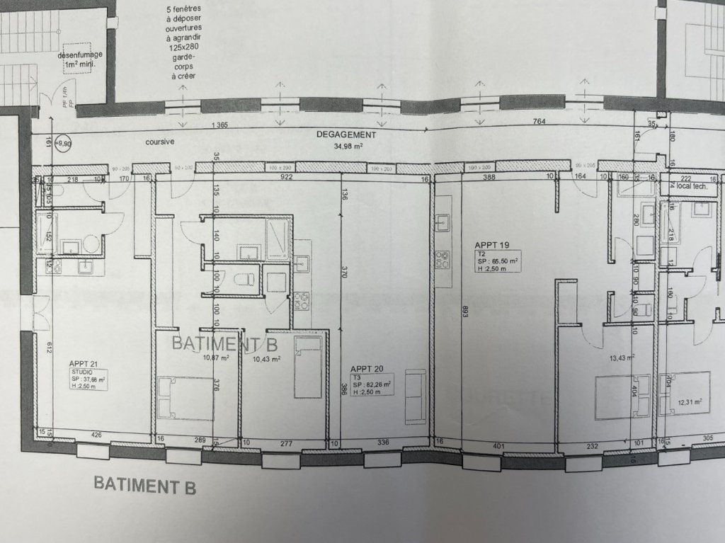
A 2 minutes du quartier de la Citadelle, au 2ème étage, plateau de 216 m2 à aménager.
Toutes les attentes vont être présentes dans l'appartement (électricité, eau et évacuations).
La façade de l'immeuble ainsi que la cage d'escalier vont être intégralement refaits à neuf.
Toutes les fenêtres seront en double vitrage PVC.
Un emplacement de parking peut être vendu en plus du prix.
Idéal pour un premier achat ou pour de l'investissement locatif.
Ce plateau peut être divisé en trois appartements.
Les informations sur les risques auxquels ce bien est exposé sont disponibles sur le site Géorisques : www.georisques.gouv.fr
Réf : 14978
Caractéristiques
Aménagements
- chauffage : individuel electrique
Copropriété
- soumis au statut de la copropriété : oui
- copropriété : 45 lots
- montant moyen annuel des charges courantes : 0 €/an soit 0 €/mois
- procédure en cours : non
Informations financières
- honoraires à charge : du vendeur
Voir nos prestations et tarifs
Classe énergie et classe climat
DPE VIERGE
DPE ANCIENNE VERSION
L'agence
NEYRAT IMMOBILIER
Chalon Sur Saône
1, rue de la Grange Frangy
71100 CHALON SUR SAONE
Tél : 03.85.48.87.53
Contactez-nous via ce formulaire ou appelez-nous pour visiter ce bien
Ecoles, transports, sorties et commerces sur CHALON SUR SAONE (71100)
Chalon Sur Saone est une ville de 45 031 habitants.
Côté logement, la commune compte 12 % de maisons et 88 % d'appartements. Cette répartition donne un premier repère sur le profil immobilier du secteur.
Le secteur dispose de commerces de proximité, avec notamment des supermarchés ou supérettes.
Pour les familles, Chalon Sur Saone offre également des établissements scolaires et des crèches.




Mes favoris



Contacts