Maison à vendre à ST MAURICE EN RIVIERE
Que vous cherchiez une maison bourgeoise ou une maison individuelle à St Maurice En Riviere ... Que ce soit pour une maison neuve ou un bien à rénover sur St Maurice En Riviere, consultez nos annonces immobilières ci-dessous. Nos conseillers immobiliers sauront vous proposer le bien qu'il vous faut.
Il y a peu de résultats pour votre recherche à ST MAURICE EN RIVIERE. Pour obtenir plus de résultats, veuillez modifier vos critères de recherche :

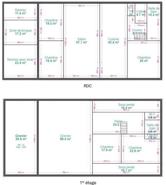
À mi-chemin entre la quiétude de la campagne et la praticité des services, cette longère d'environ 134 m² située à Saint-Maurice-en-Rivière, à 20 minutes de Chalon-sur-Saône et 30 minutes de Beaune, ...

Une Exclusivité Nicolas PACOT, NEYRAT Immobilier Saint Martin en Bresse vous présente : Sur la commune de Saint Maurice en Rivière 71620, un pavillon familial des années 1975 sur sous-sol de 125 ...
Vignettes



Mes favoris



Contacts