MAISON
SASSENAY
89 m2 - VENDU
Pavillon 89m² SASSENAY
Située sur la commune paisible de Sassenay, aux portes de Chalon-sur-Saône, dans un quartier résidentiel, cette maison des années 80 offre un cadre de vie agréable, dans un environnement verdoyant, idéal pour une famille. Implantée sur un terrain entièrement clos de 1 027 m², la propriété bénéficie d'une grande cour et d'espaces extérieurs propices aux moments conviviaux.
L'espace de vie se situe au 1er étage et accueille une entrée avec rangements, une cuisine spacieuse que l'on pourra aménager à son goût, semi-ouverte sur un salon/séjour lumineux, agrémenté d'un insert. Un dégagement dessert trois chambres, dont deux équipées de placards et donnant sur un balcon sécurisé, tout comme le salon/séjour, ainsi qu'une salle de bains et des WC séparés — un agencement fonctionnel, modulable selon vos projets (ouverture des volumes, redistribution des pièces).
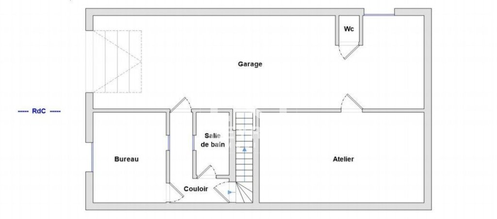
Le rez-de-chaussée offre une belle surface de rangement accessible de l'intérieur : dégagement, salle de bains, une pièce actuellement utilisée en chambre d'appoint, un grand garage, une cave et des WC. Ces volumes complémentaires apportent confort et praticité au quotidien, que ce soit pour accueillir des véhicules, installer un atelier ou aménager des espaces supplémentaires.
Côté confort et technique : la majorité des huisseries est en double vitrage PVC, le chauffage est mixte (insert et climatisation réversible, convecteurs dans les chambres), la production d'eau chaude se fait par cumulus et l'ensemble est équipé d'une VMC. Assainissement : tout-à-l'égout. Ces éléments assurent une bonne base pour vivre sereinement tout en permettant d'envisager des travaux de modernisation.
Cette maison offre un équilibre entre volumes habitables, rangements généreux et espaces extérieurs privatifs, dans un environnement calme proche des commodités de Chalon-sur-Saône. Pour visiter et imaginer ce lieu comme votre futur chez-vous, contactez nous afin de convenir d'une visite.
Les informations sur les risques auxquels ce bien est exposé sont disponibles sur le site Géorisques : www.georisques.gouv.fr
Réf : 17517
Caractéristiques
Aménagements
- Surface des dépendances : 23.7 m2 env.
- caves : 1
- construit en : 1980
- cuisine : amenagee
- chauffage : individuel climatisation réversible / convecteur électrique / insert bois
Informations financières
- soumis au statut de la copropriété : non
Quelques surfaces plus en détail
Surfaces données à titre indicatif – Non contractuelles :
- Entree (niveau 1) : 5.9 m2
- Salon sejour (niveau 1) : 28.5 m2
- Degagement (niveau 1) : 4.9 m2
- Cuisine (niveau 1) : 12.7 m2
- Wc (niveau 1) : 1.1 m2
- Salle de bains (niveau 1) : 5 m2
- Chambre 1 (niveau 1) : 9.3 m2
- Chambre 2 (niveau 1) : 11.5 m2
- Chambre 3 (niveau 1) : 11.8 m2
- Salle de bains (niveau 0) : 3.6 m2
- Degagement (niveau 0) : utile : 5.1 m2
- Chambre 4 (niveau 0) : utile : 10 m2
- Garage (niveau 0) : utile : 40.5 m2
- Cave (niveau 0) : utile : 23.7 m2
Voir quelques surfaces plus en détailVoir nos prestations et tarifs
Classe énergie et classe climat
dont émissions de Gaz à effet de serre
En savoir plus
Classe énergie et classe climat
Connexion internet
| | Cuivre DSL de 8 à 30 Mbit/s
Fibre optique plus de 1 Gbit/s
|
Données en provenance de l'Arcep
Montant estimé des dépenses annuelles d'énergie
Les dépenses d'énergie sont estimées entre 1 530 € et 2 140 € par an selon l'année de référence 2023.
Estimation de dépenses en fonction du logement et pour une utilisation standard sur 5 usages (chauffage, eau chaude sanitaire, climatisation, éclairage, auxiliaires).
L'agence
NEYRAT IMMOBILIER
Saint Martin En Bresse
1bis rue du Bourg
71620 ST MARTIN EN BRESSE
Tél : 03.85.41.60.50
Votre conseiller pour visiter ce bien
Sophie RAGEOT
Agent commercial
Tél : 03.85.41.60.50
Tél mobile : 06 41 10 18 77
Numéro RCS : 524 146 818
Contactez-nous via ce formulaire ou appelez-nous pour visiter ce bien
Ecoles, transports, sorties et commerces sur SASSENAY (71530)
Sassenay est une ville de 1 591 habitants. Côté immobilier, les habitations sont réparties en 95 % de maisons et 5 % d'appartements. On trouve des établissements scolaires à Sassenay.
















Mes favoris



Contacts