Greniers à aménager
CHALON SUR SAONE
130.51 m2 - 78 000 €
Quais de Saône - Greniers à aménager - 130.51m²
Exclusivité Neyrat. Spécial Investisseurs !!! Ce bien bénéficie du dispositif Denormandie. Belle défiscalisation à la clé. Quais de Saône. En Hyper Centre de Chalon. Greniers à aménager dans un immeuble de standing. Beau potentiel. Deux appartements possibles. Surface habitable de 130.51m², surface au sol de 309.39m². Ravalement neuf. Toiture neuve. Visite virtuelle disponible.
Les informations sur les risques auxquels ce bien est exposé sont disponibles sur le site Géorisques : www.georisques.gouv.fr
Réf : 12616
Caractéristiques
Aménagements
- surface utile : 309.39 m2 env.
Copropriété
- soumis au statut de la copropriété : oui
- copropriété : 30 lots
- montant moyen annuel des charges courantes : 102,80 €/an soit 8,57 €/mois
- procédure en cours : non
Informations financières
- honoraires à charge : du vendeur
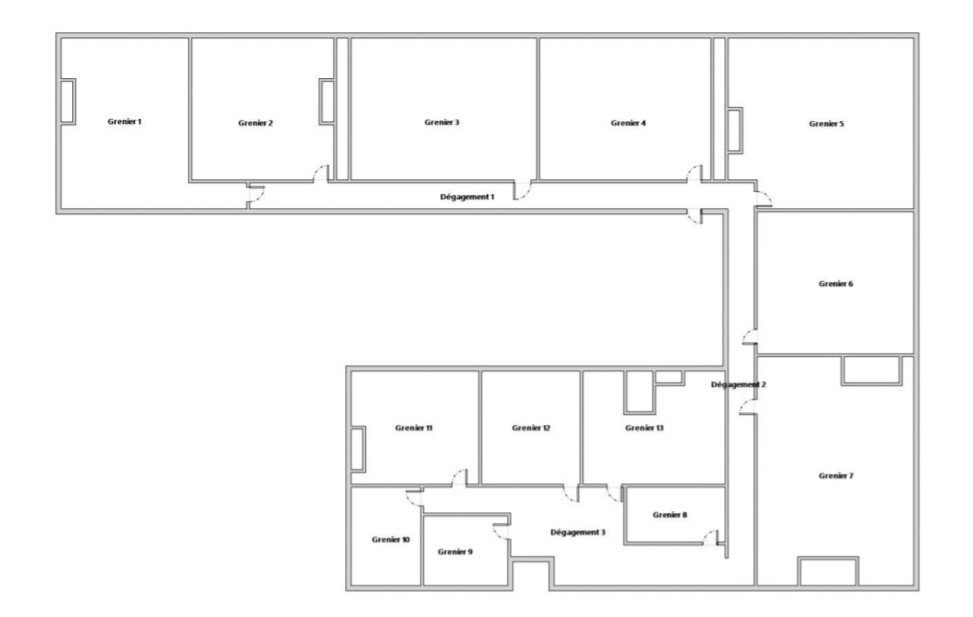
Quelques surfaces plus en détail
Surfaces données à titre indicatif – Non contractuelles :
- Degagement (niveau 4) : 16.5 m2 (utile : 16.5 m2)
- Grenier (niveau 4) : 10.1 m2 (utile : 27.8 m2)
- Grenier (niveau 4) : 5.6 m2 (utile : 22.9 m2)
- Grenier (niveau 4) : 6.9 m2 (utile : 27 m2)
- Grenier (niveau 4) : 7.8 m2 (utile : 27.4 m2)
- Degagement (niveau 4) : 15.7 m2 (utile : 15.7 m2)
- Grenier (niveau 4) : 4.6 m2 (utile : 33.7 m2)
- Grenier (niveau 4) : 6.8 m2 (utile : 22.5 m2)
- Grenier (niveau 4) : 9.5 m2 (utile : 32.1 m2)
- Degagement (niveau 4) : 17.3 m2 (utile : 17.4 m2)
- Grenier (niveau 4) : 7 m2 (utile : 7 m2)
- Grenier (niveau 4) : 6.9 m2 (utile : 6.9 m2)
- Grenier (niveau 4) : 8.5 m2 (utile : 8.5 m2)
- Grenier (niveau 4) : 2.7 m2 (utile : 16.2 m2)
- Grenier (niveau 4) : 1.6 m2 (utile : 14.2 m2)
- Grenier (niveau 4) : 3.3 m2 (utile : 13.9 m2)
Voir quelques surfaces plus en détailVoir nos prestations et tarifs
L'agence
NEYRAT IMMOBILIER
Chalon Sur Saône
1, rue de la Grange Frangy
71100 CHALON SUR SAONE
Tél : 03.85.48.87.53
Votre conseiller pour visiter ce bien
Antoine GUIGUE
Tél : 03.85.48.87.53
Tél mobile : 06 81 12 97 41
Contactez-nous via ce formulaire ou appelez-nous pour visiter ce bien
Ecoles, transports, sorties et commerces sur CHALON SUR SAONE (71100)
Chalon Sur Saone est une ville de 45 031 habitants. Côté immobilier, les habitations sont réparties en 12 % de maisons et 88 % d'appartements. On y trouve des commerces dont des supermarchés ou supérettes. On trouve des établissements scolaires et des crèches à Chalon Sur Saone.




Mes favoris



Contacts