GRENIERS
CHALON SUR SAONE
130.51 m2 - 83 000 €
Hyper centre - Greniers à aménager - 130.51m²
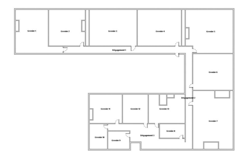
Exclusivité Neyrat. Hyper centre. Sur les quais de Saône. Dans un bel immeuble en cours de rénovation (ravalement + toiture). Situé au 4ème et dernier étage, un plateau à aménager actuellement divisé en 13 greniers. Possibilité de créer plusieurs appartements. Surface totale de 309.39m² au sol dont 130.51m² loi carrez. Visite virtuelle disponible. Nous contacter pour plus de renseignements.
Les informations sur les risques auxquels ce bien est exposé sont disponibles sur le site Géorisques : www.georisques.gouv.fr
Réf : 12071
Caractéristiques
Aménagements
- surface utile : 309.39 m2 env.
Copropriété
- soumis au statut de la copropriété : oui
- copropriété : 30 lots
- montant moyen annuel des charges courantes : 102,80 €/an soit 8,57 €/mois
- procédure en cours : non
Informations financières
- honoraires à charge : du vendeur
Quelques surfaces plus en détail
Surfaces données à titre indicatif – Non contractuelles :
- Degagement (niveau 4) : 16.5 m2 (utile : 16.5 m2)
- Grenier (niveau 4) : 10.1 m2 (utile : 27.8 m2)
- Grenier (niveau 4) : 5.6 m2 (utile : 22.9 m2)
- Grenier (niveau 4) : 6.9 m2 (utile : 27 m2)
- Grenier (niveau 4) : 7.8 m2 (utile : 27.4 m2)
- Degagement (niveau 4) : 15.7 m2 (utile : 15.7 m2)
- Grenier (niveau 4) : 4.6 m2 (utile : 33.7 m2)
- Grenier (niveau 4) : 6.8 m2 (utile : 22.5 m2)
- Grenier (niveau 4) : 9.5 m2 (utile : 32.1 m2)
- Degagement (niveau 4) : 17.3 m2 (utile : 17.4 m2)
- Grenier (niveau 4) : 7 m2 (utile : 7 m2)
- Grenier (niveau 4) : 6.9 m2 (utile : 6.9 m2)
- Grenier (niveau 4) : 8.5 m2 (utile : 8.5 m2)
- Grenier (niveau 4) : 2.7 m2 (utile : 16.2 m2)
- Grenier (niveau 4) : 1.6 m2 (utile : 14.2 m2)
- Grenier (niveau 4) : 3.3 m2 (utile : 13.9 m2)
Voir quelques surfaces plus en détailVoir nos prestations et tarifs
L'agence
NEYRAT IMMOBILIER
Chalon Sur Saône
1, rue de la Grange Frangy
71100 CHALON SUR SAONE
Tél : 03.85.48.87.53
Votre conseiller pour visiter ce bien
Antoine GUIGUE
Tél : 03.85.48.87.53
Tél mobile : 06 81 12 97 41
Contactez-nous via ce formulaire ou appelez-nous pour visiter ce bien
Ecoles, transports, sorties et commerces sur CHALON SUR SAONE (71100)
Chalon Sur Saone est une ville de 45 031 habitants. Côté immobilier, les habitations sont réparties en 12 % de maisons et 88 % d'appartements. On y trouve des commerces dont des supermarchés ou supérettes. On trouve des établissements scolaires et des crèches à Chalon Sur Saone.




Mes favoris



Contacts